一、特点:
1.用于系统电压较高的环境,初次级隔离电压≥30kV;
2.漏感低,脉冲前沿陡峭;
3.铁芯损耗小,变压器温升低;
4.软线引出,安装灵活。
二、使用环境条件:
1.环境温度:-25℃~+40℃;
2.相对湿度:温度为25℃时不大于90%;
3.大气压力:860~1060mbar(约为650~800mmHg)。
三、绝缘耐热等级:B级(130℃)
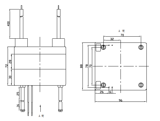
四、外形图、安装尺寸及电性能要求
1.HMB-U28

抗电强度:
端子号 | 正端←→ 负端 | 正端←→ 负端 | ||
初级 | 次级 | 次级 | 次级 | |
耐压/时间 | ≧AC30 kV/60秒 | ≧AC30kV/60秒 | ||
输入电压 | 输入频率 | 输出电压 | 脉宽 tk | 上升沿 tr | 负载电阻 | 电感 (1kHz·0.3V·串) | 同名端 |
15V | 40kHz | ≥27V | ≥11.5μs | ≤0.2μs | 100Ω | L 5-6 = L 13-14 ≥ 100μH | 1,3,5,7, 9,11,13,15 |
2.HMB-6090

型号 | u | Vp (kV) | 触发方式 | fp (kHz) | I1 (A) | tn (μs) | I2 (A) | RL (Ω) |
HMB6090 | 2:1 | 95 | 脉冲串触发 | 7 | 2.4 | 62.5 | 0.9 | 5 |